Pereiti į pagrindinį turinį

Nr. 8.2 namo planas

3D planas

(Tai tik orientacinis planas, pateiktas neatsižvelgiant į pasaulio kryptis)

27kv 3D

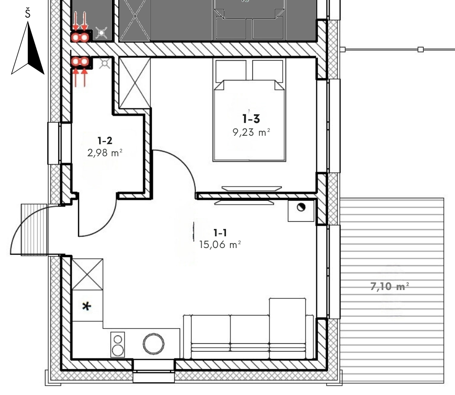
2D planas

B-rytai-apacia

Informacija

Numeris:8.2
Kambarių skaičius:2
Bendras plotas:27 kv.m
Svetainės/virtuvės plotas:15.06 kv.m
Miegamasis:9.23 kv.m
WC:2.98 kv.m
Terasos orientacija:Rytus
Kaina:116900
Apdaila:Dalinė

Susisiekite