Pereiti į pagrindinį turinį

Nr. 40 namo planas

3D planas

(Tai tik orientacinis planas, pateiktas neatsižvelgiant į pasaulio kryptis)

44kv 3D

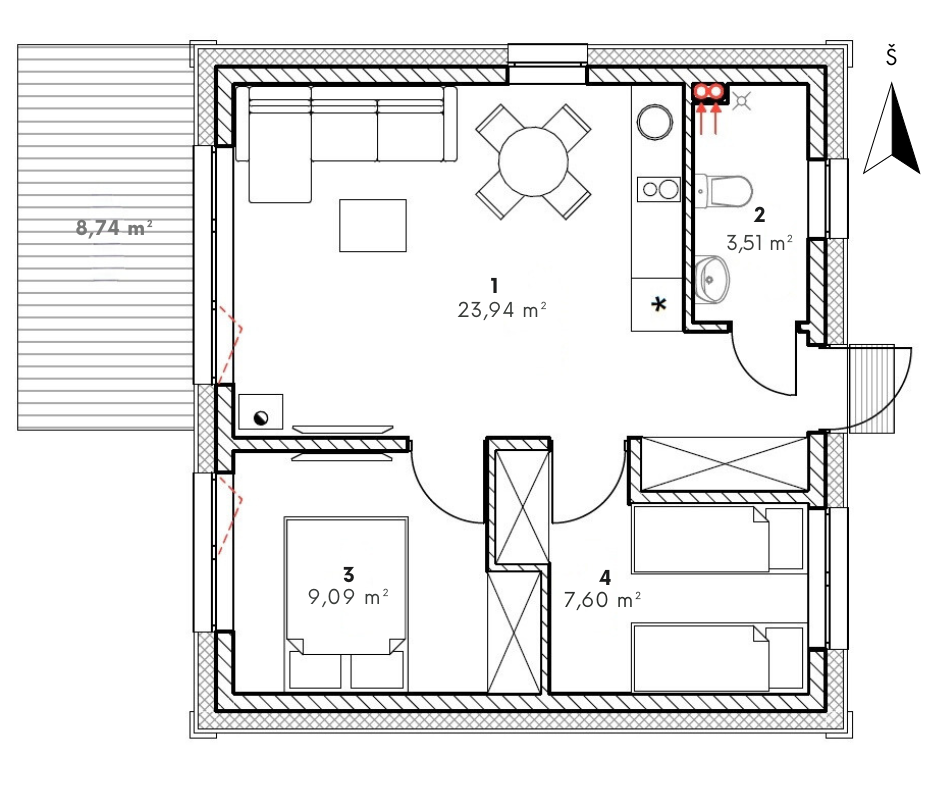
2D planas

44kv vakarai

Informacija

Kaina:       -
Numeris:40
Kambarių skaičius:3
Bendras plotas:45 kv.m
Svetainės/virtuvės plotas:23.94 kv.m
Miegamasis 1:9.09 kv.m
Miegamasis 2:7.60 kv.m
WC:3.51 kv.m
Terasos orientacija:Vakarai
Apdaila:Dalinė

Susisiekite