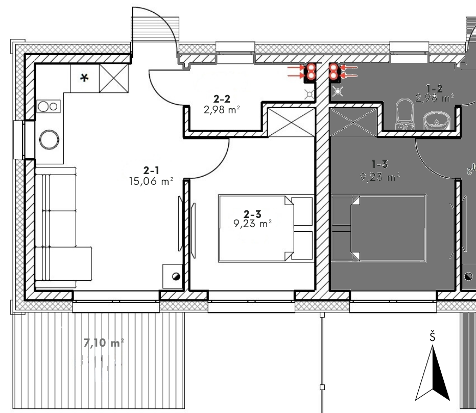
Nr. 3.2 namo planas
3D planas
(Tai tik orientacinis planas, pateiktas neatsižvelgiant į pasaulio kryptis)
2D planas
Informacija
| Numeris: | 3.2 |
| Kambarių skaičius: | 2 |
| Bendras plotas: | 27 kv.m |
| Svetainės/virtuvės plotas: | 15.06 kv.m |
| Miegamasis: | 9.23 kv.m |
| WC: | 2.98 kv.m |
| Terasos orientacija: | Pietūs |
| Kaina: AKCIJA | 94900 |
| Apdaila: | Dalinė |